Apartament 3 camere cu terasa de 46,8 mp in Ansamblul Estimo
Localitatea: Cluj Napoca, Cartier: .

De vanzare Apartament, 3 camere (ID 6736)
Caracteristici
Alte Informatii
Vanzare apartament 3 camere cu terasa de 46,8 mp in Ansamblul Estimo un complex de 9 imobile noi , ce beneficiaza de un acces deosebit de facil din zona estica a orasului, din cartierul Marasti si Iulius Mall, obiectiv fata de care ansamblul se situeaza la o distanta de numai 10 minute, fiind interconectat de acestea prin mijloacele de transport in comun.
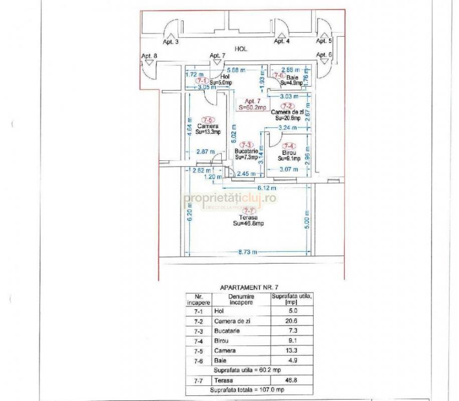
Suprafata si compartimentare
Suprafata apartamentului este de 60,2 mp + 45,4 mp terasa, avand urmatoarea compartimentare: bucatarie + living, 2 dormitoare, baie, hol, terasa.
Apartamentul se vinde semifinisat: usa metalica la intrare, sapa turnata, peretii gletuiti, centrala termica + radiatoare, tamplarie PVC termopan, utilitati pe pozitii si functionale.
Apartamentul este situat la etajul 1 intr-un imobil cu 4 etaje dotat cu lift.
Adauga la lista de preferinte
Tipareste oferta
Trimite oferta prin email

Meniu
Proprietati
Cautare



