Cautare simpla
Cautati dupa mai multe criterii pentru a gasi exact proprietatea pe care o doriti.
Cautare dupa ID
Teren 443mp cu autorizatie de construire, str Narciselor
Localitatea: Cluj Napoca, Cartier: Floresti, Strada: Narciselor
Data introducerii: 10-02-2020
Nr. vizualizari: 3714

De vanzare Teren intravilan (ID 6638)
Caracteristici
Suprafata teren:
443 mp
Acces sosea:
da
Apa:
da
Gaz:
da
Curent:
da
Alte Informatii
De vanzare 680mp teren astfel:
443mp - parcela de teren
36mp - cota teren parcari
201mp - cote de drum
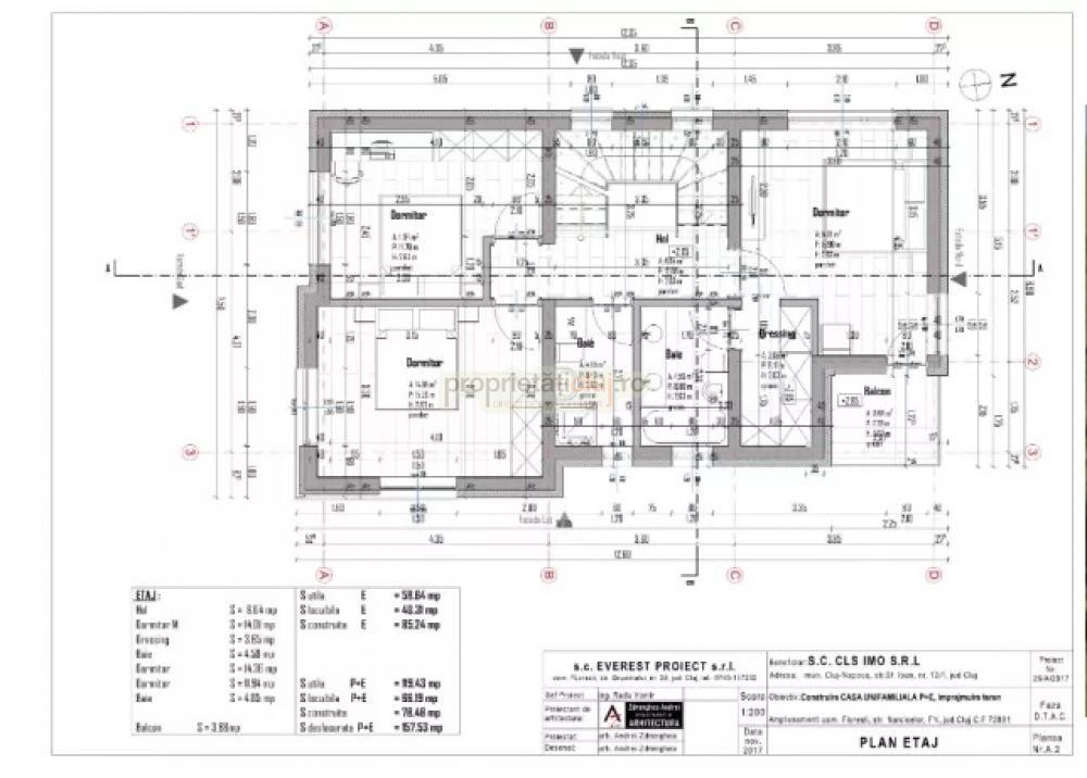
Cu proiect si autorizatie de construire casa individuala P+1, cu Su=120mp, compusa din:
Parter: living, bucatarie, camara, baie, hol, scara interioara
Etaj: 3 camere, 2 bai, dressing, hol, scara interioara, balcon;
Zona frumoasa de case, panorama.
Utilitati: apa, curent, gaz.
Drum privat cu latimea de 7m
Adauga la lista de preferinte
Tipareste oferta
Trimite oferta prin email
* Numele dumneavoastra
* Emailul dumneavoastra
* Email prieten:
Email prieten:
Email prieten:
Mesaj:
Campurile marcate cu * sunt obligatorii

Meniu
Proprietati
Cautare



