Cautare simpla
Cautati dupa mai multe criterii pentru a gasi exact proprietatea pe care o doriti.
Cautare dupa ID
Vanzare teren cu casa demolabila cu autorizatie noua de constructie
155 000 euro
Localitatea: Cluj Napoca, Cartier: Grigorescu, Strada: Milcov (Click pentru pozitionare pe harta)
Data introducerii: 27-09-2013
Nr. vizualizari: 4418

De vanzare Casa, 4 camere (ID 3631)
Caracteristici
Suprafata teren:
325 mp
Suprafata:
290 mp
Front stradal:
18 m
Structura:
S+P+2E
Camere:
4
Bai:
2
An constructie:
Nespecificat
Compartimentare:
Nedecomandat
Stare proprietate:
Nespecificata
Alte Informatii
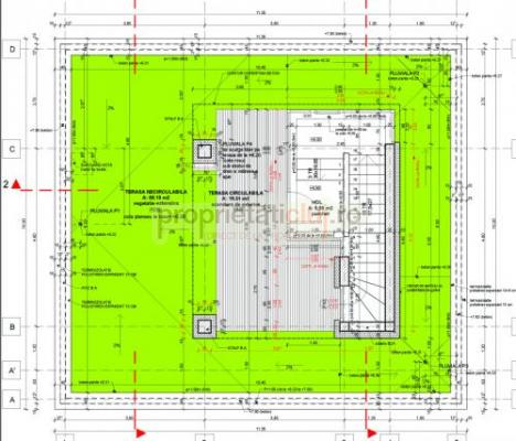
Vand casa demolabila cu autorizatie de constructie, situata pe strada Milcov in Grigorescu, zona deosebita de case.
Suprafata terenului 325 mp, front de 18 ml, toate utilitatile pe teren. Autorizatie de constructie pentru casa S+P+2E+Terasa circulabila, suprafata 290 mp.
Pret: 155.000 euro
Adauga la lista de preferinte
Tipareste oferta
Trimite oferta prin email
* Numele dumneavoastra
* Emailul dumneavoastra
* Email prieten:
Email prieten:
Email prieten:
Mesaj:
Campurile marcate cu * sunt obligatorii

Meniu
Proprietati
Cautare



